Quadrilocale in vendita

Monterotondo, Via Frati Crociferi
€ 269.000
Prezzo aggiornato
4 locali 4 locali
120 Mq 120 Mq
2 bagni 2 bagni

Quadrilocale in vendita

Monterotondo, Via Frati Crociferi

Descrizione annuncio

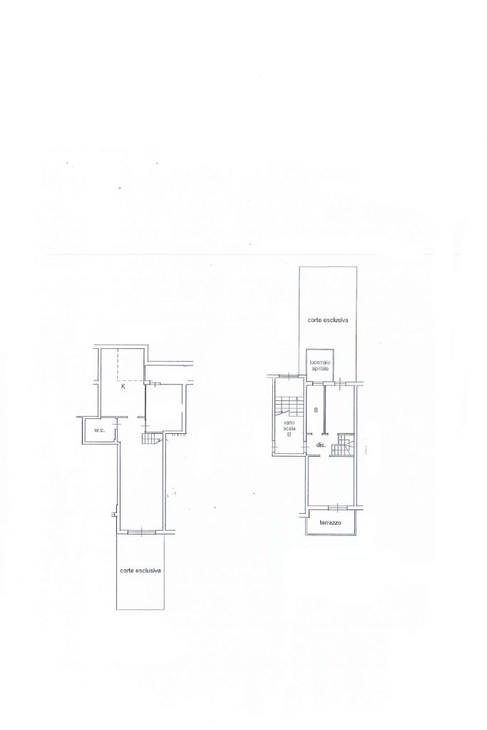
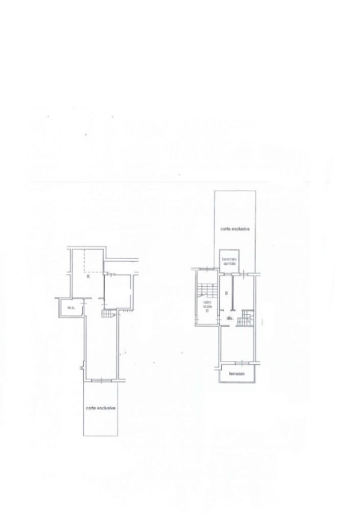
In una delle aree più esclusive e riservate, nella zona dei Cappuccini, a pochi passi dai principali servizi, proponiamo in vendita un elegante quadrilocale di circa 113 mq, disposto su due livelli, situato al piano terra di una curata palazzina in cortina priva di ascensore, in perfetto stato interno, molto luminoso, grazie ad una doppia esposizione Est-Ovest.

La soluzione, prevede un doppio accesso indipendente: dall’ingresso principale e dalla corte sterna.

L'ingresso si apre su un ampio e luminoso soggiorno, con accesso diretto ad una corte esterna di circa 25 mq, ideale per momenti di relax all'aperto. Adiacente alla zona giorno si trova una spaziosa cucina abitabile, dotata di un pratico ripostiglio, a completare il piano, vi è una spaziosa cameretta, un bagno dotato di box doccia e un comodo armadio a muro nel sotto scala.

Una raffinata scala conduce al piano superiore, dedicato alla zona notte, composta da un’ampia camera da letto matrimoniale con accesso diretto al proprio balcone privato, una cameretta dalla quale è possibile accedere direttamente al giardino di circa 40 mq dove è troviamo una riserva idrica privata.

Sullo stesso livello è presente un secondo bagno finestrato completo di vasca.

L'immobile, caratterizzato da finiture di alta qualità, è dotato di numerosi comfort: porta blindata, infissi in triplo vetro per un eccellente isolamento termico e acustico, sistema di allarme che comprende l’intera soluzione, climatizzatori, zanzariere e grate dual block motorizzate.

La soluzione è stata completamente ristrutturata nel 2019, mentre, infissi e i climatizzatori sono stati sostituiti nel 2024.

Soluzione ideale per chi cerca tranquillità, comfort e spazi generosi in una delle zone più ambite della città, con il valore aggiunto di una splendida vista sul verde.

Inoltre, è possibile affittare un posto auto doppio nelle vicinanze dell'immobile.

Le impalcature visibili nelle foto sono relative a lavori di rifacimento del tetto e dei frontalini dei balconi, già deliberati e a carico della parte venditrice.

Mostra tutto

Nelle vicinanze

Trasporto pubblico Trasporto pubblico
Monterotondo
Monterotondo
2,8 Km
Trasporto pubblico
2,4 Km
Ricariche auto elettriche Ricariche auto elettriche
Mentana Amendola | EnelX
1,8 Km
Scuole Scuole
Liceo Classico Catullo
730 m
Scuole
850 m
I.T.I.S. G. Cardano
1,4 Km
Farmacia Farmacia
APM 2
620 m
APM 1
1,0 Km
APM 4
1,2 Km
Farmacia Gesù Operaio
1,5 Km
Farmacias Iampiconi
1,8 Km
Ospedali Ospedali
Pronto Soccorso Ospedale
460 m
Ospedale "SS Gonfalone"
460 m
Casa Di Cura Villa Tiberia
1,5 Km
Supermercati Supermercati
Conad
440 m
Supermercati
520 m
Carrefour Express
750 m
Conad City
970 m
MD
980 m
Negozi Negozi
Mr. T-shirt
490 m
La Forneria
520 m
Fornodolcecaffè
1,7 Km
Abbigliamento Biancheria Bruna
1,8 Km
Jin Di Li Market
1,9 Km
Bar Bar
Bar Roma
620 m
Kalacta
790 m
Bar Pasticceria Gelateria Monte Bianco
2,2 Km
Ristoranti Ristoranti
L'Officina
630 m
Kalapà Specialità greche
710 m
Dei Leoni
830 m
Pizza Rotondo
960 m
Ristoranti
1,3 Km
Mostra tutto

Caratteristiche

Rif.:
61101130
Piano:
Basso di 3
Totale piani:
3
Balconi:
1
Camere da letto:
3
Arredamento:
Assente
Mostra tutto
Prezzo Prezzo
€ 269.000
Rata mutuo Rata mutuo
€ 1.194 / mese
Spese annue Spese annue
€ 600
Proponi il tuo prezzoProponi il tuo prezzo

Classe Energetica

B
B
B
B
B
B
B
B
B
EP globale non rinnovabile:
38.66 kW h/m² anno
EP globale rinnovabile:
38.66 kW h/m² anno
EP invernale del fabbricato:
EP estiva del fabbricato:
Anno di costruzione:
2002
Riscaldamento:
Autonomo
Tipo impianto:
A radiatori
Tipo alimentazione:
Metano

Prezzo ridotto di €1 (6%%)

Ti interessa visionare l'immobile?

Fissa un appuntamento  Fissa un appuntamento

Richiedi informazioni

* Questi campi sono obbligatori

Calcola il tuo mutuo

Semplice e senza impegno
Anticipo

( % )
Mutuo

( % )

pochi semplici passi

inserisci i tuoi dati
Questionario completato
Grazie per aver richiesto un appuntamento senza impegno con un nostro Consulente del Credito e Assicurativo.

Hai inserito correttamente tutti i dati necessari e a breve riceverai una e-mail con un link da convalidare per inviare i tuoi dati.
Affiliato
Studio Monterotondo Centro Srl
Via XXV Ottobre, 19 00015 Monterotondo (RM)

Il nostro staff


  • Massimo Le Donne
    Affiliato

  • Gianluca Mammoliti
    Collaboratore

  • Ludovica Onorati
    Coordinatrice

  • Diego Romano
    Collaboratore

  • Andrea Samà
    Responsabile
Via XXV Ottobre, 19 00015 Monterotondo (RM)
Zona: Monterotondo Centro
Mostra su mappa
Orari: Lunedi-Venerdi 09.00-13.00/15.30-19.30 Sabato 09.00-13.00
Affiliato
Studio Monterotondo Centro Srl
Via XXV Ottobre, 19 00015 Monterotondo (RM)

2025 Tecnocasa Franchising S.p.A. - P. IVA 08365160152 - Via Monte Bianco 60/A 20089 Rozzano (MI). Ogni agenzia ha un proprio titolare ed è autonoma. Privacy policy | Policy utilizzo | Cookie policy